
| Interné ID: | (N016-12-MAKN) |
|---|---|
| Ulica: | Hliník nad Váhom |
| Obec: | Bytča |
| Okres: | Bytča |
|---|---|
| Mestská časť: | Hliník nad Váhom |
| Kraj: | Žilinský kraj |
| Druh: | Domy |
|---|---|
| Typ: | Predaj |
| Typ domu: | Rodinný dom |
(N016-12-MAKN) maklér Martin Knižka 0911 389 132
Ponúkame na predaj modernú novostavbu 5 izbového rodinného domu v stave holodom, s možnosťou dokončenia do štandardu podľa predstáv nového majiteľa. Dom sa nachádza v obci Hliník nad Váhom, vzdialený 5km od Bytče s napojením na D1, v tichej slnečnej lokalite, s výhľadom na okolitú prírodu.
Typ: Rodinný dom dvojpodlažný, počet izieb: 5, parkovacie miesta: 4
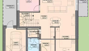
Dispozícia domu:
Prvé podlažie, prízemie 86m²
• vstupná chodba, obývacia izba spojená s kuchyňou, spálňa
• kúpeľňa so sprchovým kutom a toaletou,
• kotolňa s príslušenstvom k tepelnému čerpadlu DAIKIN, garáž, terasa I. o rozlohe 15m², terasa II. o rozlohe 6,5m².
Druhé podlažie:
• tri spálne, kúpeľňa s vaňou, samostatne toaleta
• trasa o rozlohe 50m².
Technické parametre a použité materiály:
• stavebný materiál: tehla Phoroterm, zateplenie eps 20 cm, zateplenie strechy 40cm
• hliníkové okná s troj-sklom, hliníkové vchodové dvere
• žulové parapety interiér aj exteriér, veľkoformátová dlažba 280cm x 120cm, travertín.
Dom je navrhnutý s dôrazom na nízke prevádzkové náklady – vykurovanie podlahové je zabezpečené tepelným čerpadlom zn. DAIKIN. Cena energií: 100 Euro / mesiac
Inžinierske siete (elektrina 240/380), voda vlastná vrt do hĺbky 30m, žumpa o objeme 12m³.
Exteriér: základná úprava pozemku, dažďové zvody, bleskozvody.
Bytča 5km, Považská Bystrica 17km, Žilina 15km.
-100 m od domu cyklotrasa: cez Žilinu až do Terchovej, opačný smer Považská Bystrica až do Trenčína
-200 m od domu les, výhľad na Súľovské skaly, množstvo turistických možnosti v okolí
Táto nehnuteľnosť je ideálnou voľbou pre rodinu, ktorá hľadá moderné bývanie s kvalitnými materiálmi a možnosťou dotvoriť si interiér podľa vlastného vkusu.
Celková cena domu: 460.000,-€, v prípade vážneho záujmu, korektného a rýchleho jednania je však možná dohoda.
V cene je zahrnutý kompletný právny servis a finančný servis, zmluvy spojené s prevodom vlastníckych práv, kúpno-predajné zmluvy, vklad na kataster. Rodinný dom Vám radi predstavíme na obhliadke.
Tel. č. +421 911 389 132, knizka@novebyvaniereality.sk.